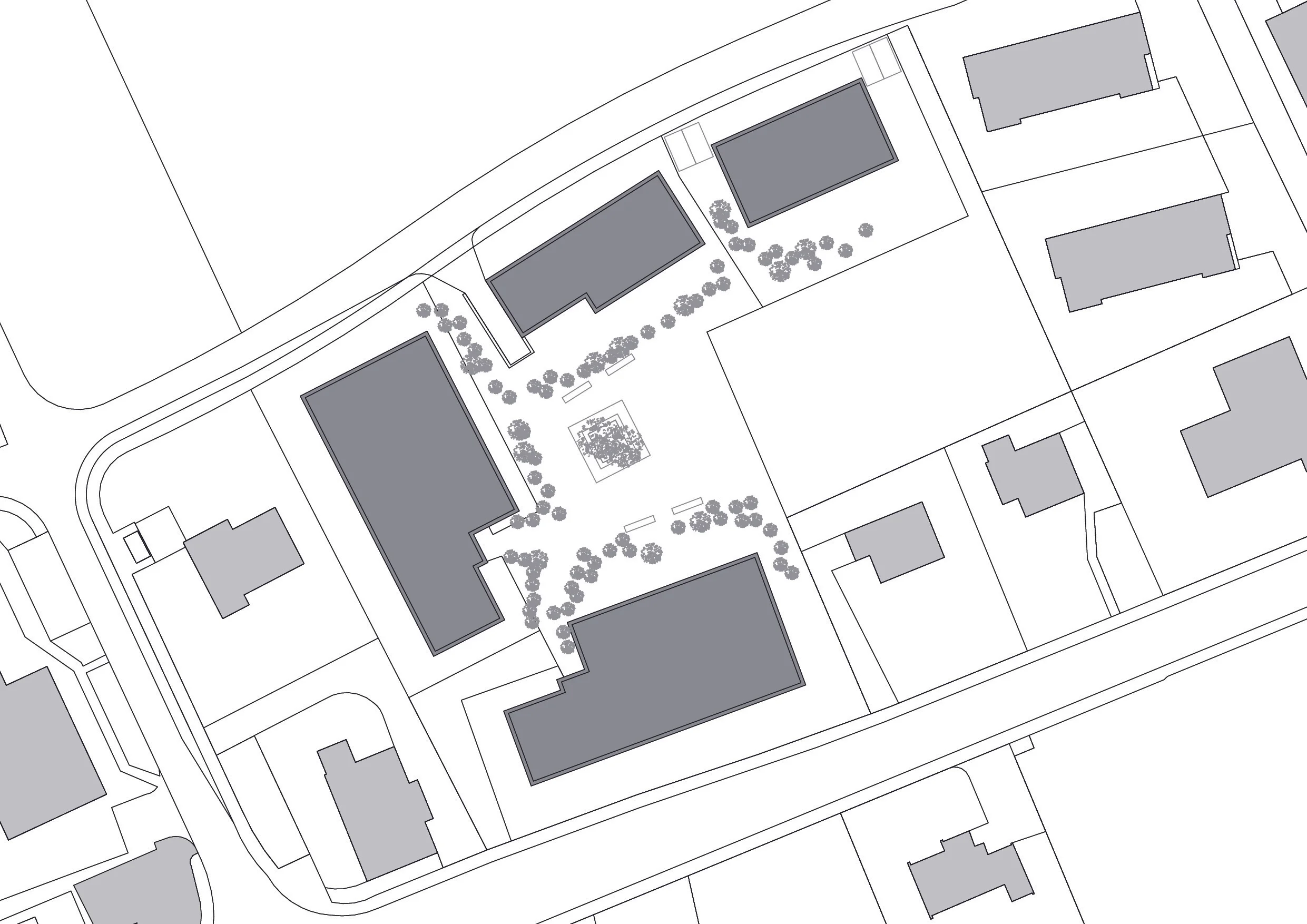
540 00 Rupperswil Wohnüberbauung
in Wohnbauten
Wohnbauten